$82,000
$80,000
2.5%For more information regarding the value of a property, please contact us for a free consultation.
3 Beds
1.5 Baths
1,209 SqFt
SOLD DATE : 07/28/2025
Key Details
Sold Price $82,000
Property Type Single Family Home
Sub Type Single Family Residence
Listing Status Sold
Purchase Type For Sale
Square Footage 1,209 sqft
Price per Sqft $67
MLS Listing ID 225025047
Sold Date 07/28/25
Bedrooms 3
Full Baths 1
HOA Y/N No
Year Built 1900
Annual Tax Amount $2,245
Lot Size 3,484 Sqft
Lot Dimensions 0.08
Property Sub-Type Single Family Residence
Source Columbus and Central Ohio Regional MLS
Property Description
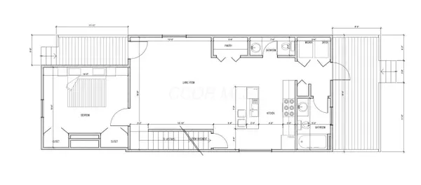
Turnkey Development Opportunity - Demo Complete + Architectural Plans Included
This is the opportunity savvy investors and builders wait for. Fully gutted and prepped for construction, this property comes with architectural plans already completed — just pull permits and build.
Located in a high-demand area with strong resale potential, this project is perfect for a developer or investor looking to move fast. Skip the demo, skip the design process — the vision is already drawn up and ready for execution.
• Full gut demo already done
• Architectural plans included in sale
• Major time and cost savings upfront
• Ideal layout and design for modern resale
• Great comps and high ROI potential
Finish the job and bring this one to life — all the prep work has been done. Whether you're flipping or building a long-term hold, this is a plug-and-play opportunity with a head start.
Location
State OH
County Franklin
Area 0.08
Rooms
Other Rooms Dining Room, Eat Space/Kit, Living Room
Basement Cellar, Full
Dining Room Yes
Interior
Cooling Central Air
Fireplaces Type One
Equipment Yes
Fireplace Yes
Laundry LL Laundry
Exterior
Parking Features On Street
Building
Level or Stories Two
Schools
High Schools Columbus Csd 2503 Fra Co.
School District Columbus Csd 2503 Fra Co.
Others
Tax ID 010-012537
Read Less Info
Want to know what your home might be worth? Contact us for a FREE valuation!

Our team is ready to help you sell your home for the highest possible price ASAP

“My job is to find and attract mastery-based agents to the office, protect the culture, and make sure everyone is happy! ”






